
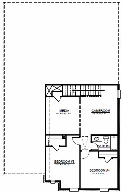
555 Forest Haven Dr. in Rolling Ridge Phase 2 showcases the Ellerdale floor plan with 5 bedrooms, 3 bathrooms, and 2,908 sq. ft. Designed for both comfort and entertainment, this spacious home includes a media room and a game room, perfect for family living in Van Alstyne, TX.