Madison

was
416990

390990

+

Coming Soon

2209
+
sqft
4
bds
3
ba
2
stories
2
-car garage
Available Communities:
Available Series:

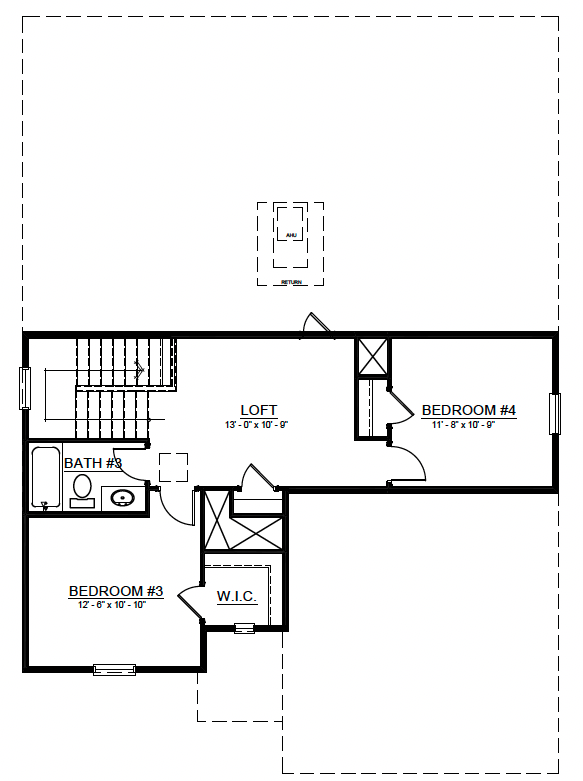
The Madison floorplan is a stunning two-story home offering 2,274 square feet of living space with a unique loft-style design. Featuring four bedrooms, three bathrooms, and a two-car garage, this home provides plenty of room for families of all sizes. The open-concept main floor is perfect for entertaining, while the loft adds extra space for relaxation or work. With its modern design and ample living areas, the Madison is a standout choice.

Get in Touch

Buyer or Realtor?
Thank you! Your submission has been received!
Oops! Something went wrong while submitting the form.

Available Homes

There are currently no available homes with this plan.

Other Plans

Thank you! Your submission has been received!
Oops! Something went wrong while submitting the form.
coming soon

Becker

was

+

MODEL COMING SOON

Coming Soon

3447
+
sqft
4
bds
3
ba
2
stories
2
-car garage
Available Communities:
Representative drawing of exterior of Raleigh floorplan

Raleigh

was
358990

340990

+

Coming Soon

1354
+
sqft
3
bds
2
ba
1
stories
2
-car garage
Available Communities:
one story brick rendering exterior of a home at night

Knollwood

was
359990

344990

+

Coming Soon

1800
+
sqft
4
bds
2
ba
1
stories
2
-car garage
Available Communities:
Representative photo of Agusta floorplan exterior.

Augusta

was
369990

350990

+

Coming Soon

1571
+
sqft
3
bds
2
ba
1
stories
2
-car garage
Available Communities:
exterior of a single story brick home in night setting (rendering)

Grier

was
366990

351990

+

Coming Soon

2000
+
sqft
4
bds
2
ba
1
stories
2
-car garage
Available Communities:
exterior colored rendering of alder plan. one story brick home with 2 car garage

Alder

was
373990

358990

+

Coming Soon

1600
+
sqft
3
bds
2
ba
1
stories
2
-car garage
Available Communities:
Representative drawing of Dover floorplan exterior

Dover

was
380990

359990

+

Coming Soon

1746
+
sqft
4
bds
2
ba
1
stories
2
-car garage
Available Communities:
exterior image of our model home in rolling ridge, brick home one story

Barrington

was
378990

363990

+

Coming Soon

2213
+
sqft
4
bds
2
ba
1
stories
2
-car garage
Available Communities:
Representative exterior image of Jackson floorplan

Jackson

was
387990

368990

+

Coming Soon

1928
+
sqft
4
bds
2
ba
1
stories
2
-car garage
Available Communities:
exterior colored rendering of alder plan. one story brick home with 2 car garage

Alder

was
383990

368990

+

Coming Soon

1600
+
sqft
3
bds
2
ba
1
stories
2
-car garage
Available Communities:
Exterior photo (rendering) of brick 2 story home

Heathbrook

was
385990

371990

+

Coming Soon

2274
+
sqft
4
bds
3
ba
2
stories
2
-car garage
Available Communities:
exterior rendering in dusk lighting of one story wade floor plan

Wade

was
392990

375990

+

Coming Soon

1806
+
sqft
3
bds
2
ba
1
stories
2
-car garage
Available Communities:
2 story brick exterior home (rendering)

Kinsley

was
390990

375990

+

Coming Soon

2484
+
sqft
5
bds
3
ba
2
stories
2
-car garage
Available Communities:
Representative drawing of exterior of Trenton floorplan

Trenton

was
397990

378990

+

Coming Soon

2124
+
sqft
4
bds
2
ba
1
stories
2
-car garage
Available Communities:
exterior rendering in dusk lighting of one story wade floor plan

Wade

was
402990

384990

+

Coming Soon

1806
+
sqft
3
bds
2
ba
1
stories
2
-car garage
Available Communities:
exterior colored rendering in dusk lighting of nash floorplan, one story with 2 car garage in front on right side

Nash

was
409990

389990

+

Coming Soon

2087
+
sqft
3
bds
2
ba
1
stories
2
-car garage
Available Communities:
brick exterior of a 2 story home at sunset

Providence

was
404990

389990

+

Coming Soon

2572
+
sqft
4
bds
3
ba
2
stories
2
-car garage
Available Communities:
Representative drawing of exterior of home

Albany

was
416990

391990

+

Coming Soon

2392
+
sqft
5
bds
3
ba
2
stories
2
-car garage
Available Communities:
colored exterior rendering of baker plan, one story brick home in dusk lighting with 2 car garage in front

Baker

was
414990

394990

+

Coming Soon

2200
+
sqft
3
bds
2
ba
1
stories
2
-car garage
Available Communities:
Exterior of brick 2 story home (rendering)

Ellerdale

was
413990

398990

+

Coming Soon

2908
+
sqft
5
bds
3
ba
2
stories
2
-car garage
Available Communities:
exterior colored rendering in dusk lighting of nash floorplan, one story with 2 car garage in front on right side

Nash

was
419990

399990

+

Coming Soon

2087
+
sqft
3
bds
2
ba
1
stories
2
-car garage
Available Communities:
Representative drawing of exterior of Columbus floorplan

Columbus

was
427990

402990

+

Coming Soon

2385
+
sqft
4
bds
3
ba
2
stories
2
-car garage
Available Communities:
Colored rendering in dusk lighting, one story camden floorplan with a 2 car garage in the front

Camden

was
424990

404990

+

Coming Soon

2332
+
sqft
3
bds
2.5
ba
1
stories
2
-car garage
Available Communities:
Exterior colored rendering of the 2 story Kensington plan in dusk lighting with 2 car front garage and driveway

Kensington

was
431990

416990

+

Coming Soon

2725
+
sqft
4
bds
3
ba
2
stories
2
-car garage
Available Communities:
colored exterior rendering of baker plan, one story brick home in dusk lighting with 2 car garage in front

Baker

was
434990

419990

+

Coming Soon

2200
+
sqft
3
bds
2
ba
1
stories
2
-car garage
Available Communities:
bayhill floorplan one story white house with siding

Bayhill

was
445990

420990

+

Coming Soon

1861
+
sqft
3
bds
2
ba
1
stories
2
-car garage
Available Communities:
Finley elevation A

The Finley

was
440990

420990

+

Coming Soon

2356
+
sqft
3
bds
2.5
ba
1
stories
2
-car garage
Available Communities:
Brown two story brick house

Wheeler

was
443990

423990

+

Coming Soon

2779
+
sqft
4
bds
2.5
ba
2
stories
2
-car garage
Available Communities:
Exterior rendering of lancaster 2 story brick home in dusk lighting

Lancaster

was
442990

428990

+

Coming Soon

2944
+
sqft
4
bds
3
ba
2
stories
2
-car garage
Available Communities:
Colored rendering in dusk lighting, one story camden floorplan with a 2 car garage in the front

Camden

was
445990

430990

+

Coming Soon

2332
+
sqft
3
bds
2.5
ba
1
stories
2
-car garage
Available Communities:
exterior rendering of one story mayfield plan with white exterior in dusk lighting

Mayfield

was
456990

431990

+

Coming Soon

2099
+
sqft
3
bds
2
ba
1
stories
2
-car garage
Available Communities:
Exterior rendering in dusk lighting of 2 story becker floorplan, brick exterior and shingles

Becker

was
452990

432990

+

Coming Soon

2969
+
sqft
4
bds
3
ba
2
stories
2
-car garage
Available Communities:
Brown two story brick house

Wheeler

was
447990

432990

+

Coming Soon

2779
+
sqft
4
bds
2.5
ba
2
stories
2
-car garage
Available Communities:
Representative drawing of two story brick home

Hartford

was
457990

434990

+

Coming Soon

2815
+
sqft
5
bds
3
ba
2
stories
2
-car garage
Available Communities:
Exterior rendering in dusk lighting of 2 story becker floorplan, brick exterior and shingles

Becker

was
457990

442990

+

Coming Soon

2969
+
sqft
4
bds
3
ba
2
stories
2
-car garage
Available Communities:
Exterior colored rendering of the 2 story Kensington plan in dusk lighting with 2 car front garage and driveway

Kensington

was
459990

444990

+

Coming Soon

2725
+
sqft
4
bds
3
ba
2
stories
2
-car garage
Available Communities:
black and white drawing of two story kelly plan

Kelly

was
472990

447990

+

Coming Soon

2392
+
sqft
4
bds
3
ba
2
stories
2
-car garage
Available Communities:
exterior rendering of one story logan floorplan, which is white siding with dark entry door

Logan

was
474990

449990

+

Coming Soon

2180
+
sqft
3
bds
2
ba
1
stories
2
-car garage
Available Communities:
drawing of exterior janie plan brick farmhouse

Janie

was
468990

453990

+

Coming Soon

2509
+
sqft
4
bds
3
ba
2
stories
2
-car garage
Available Communities:
Exterior rendering of lancaster 2 story brick home in dusk lighting

Lancaster

was
469990

454990

+

Coming Soon

2944
+
sqft
4
bds
3
ba
2
stories
2
-car garage
Available Communities:
exterior drawing of schrade texana farmhouse siding

Schrade

was
488990

463990

+

Coming Soon

2565
+
sqft
4
bds
3
ba
2
stories
2
-car garage
Available Communities:
black and white drawing of 2 story peyton plan with front balcony (craftsman elevation)

Peyton

was
503990

478990

+

Coming Soon

2509
+
sqft
4
bds
3
ba
2
stories
2
-car garage
Available Communities:
black and white drawing of peyton III with the texana farmhouse elevation and balcony in front upstairs

Peyton III

was
547990

522990

+

Coming Soon

2957
+
sqft
5
bds
4
ba
2
stories
2
-car garage
Available Communities:

No Plans Match this Filter

Looking for something specific? Let's chat!

>